花月楼(国登録文化財)
勝山市
和風、古民家
			パーティ
			コンサート、会議
			撮影
	
勝山市は、明治時代より繊維産業が興り、絹織物から人絹織物へと移り変わり昭和初期に最盛期を迎えました。通称河原町と呼ばれる通りには、料亭が建ち並び、景気の良い当時は多くの人で賑わいました。この建物はお料理角吉の支店として1897年(明治30年)に河原町に建てられました。1955年(昭和30年)頃「花月楼」と改名。1999年(平成11)年に廃業しました。2011年(平成23年)国の有形文化財に登録。2017年(平成29年)「旬菜食祭 花月楼」として蘇りました。
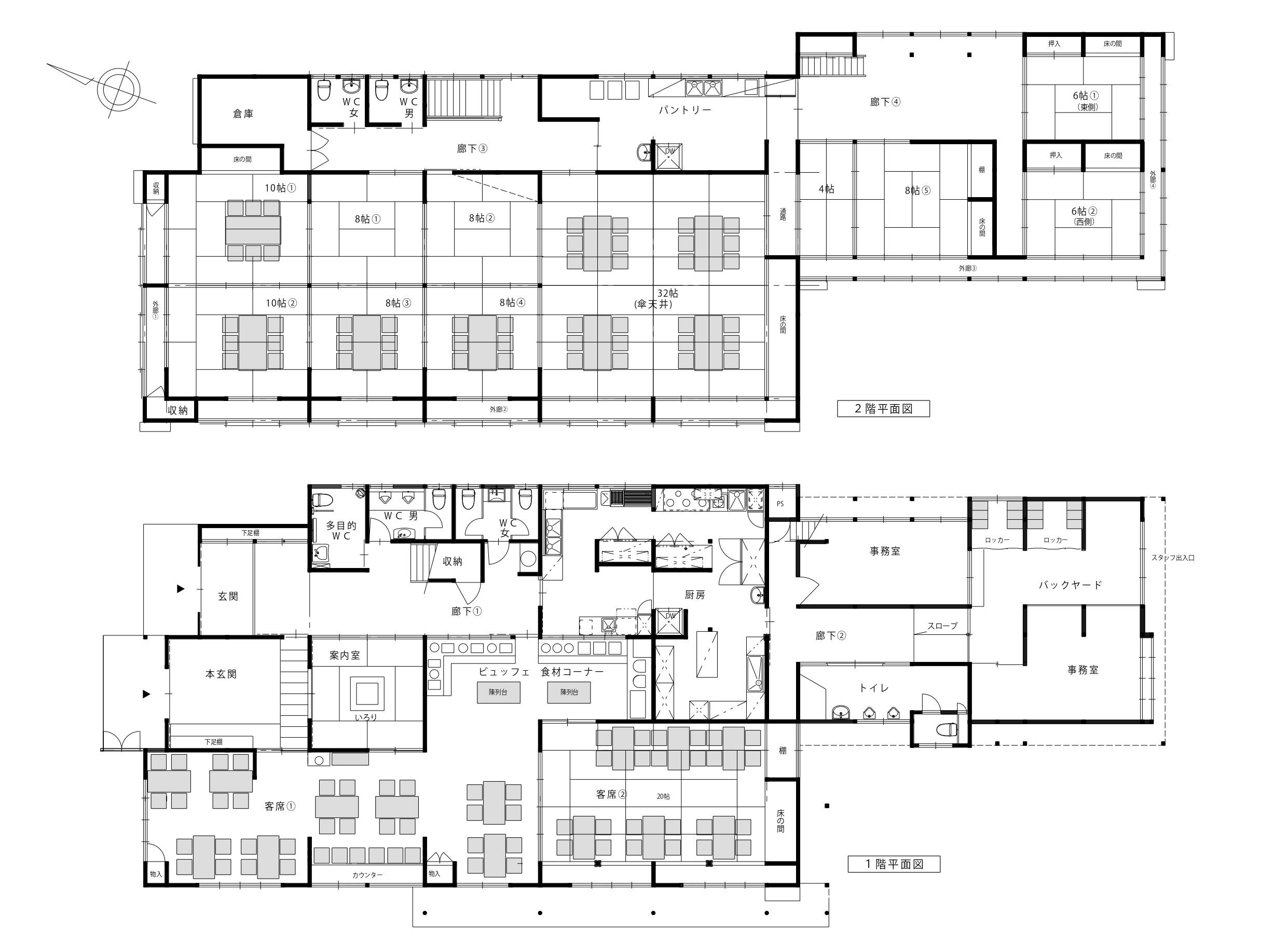
河原町の中でも一際大きく存在感のある建物です。全面改修と耐震補強を行いましたが、随所に当時の風情を残した改修になっています。玄関の内壁は改修当時のベンガラ色に再現され料亭の雰囲気を醸し出しています。1階には気軽に立ち寄れる食事や喫茶が楽しめるスペース。2階は貸座敷でお食事が出来ます。特に傘を広げたような形状をした天井がある座敷が見どころです。
明治、大正、昭和と勝山の良き時代を見つめていた情緒感溢れる建物は、結婚式や写真撮影などに最適。特に2階の傘天井の座敷は写真映えがするので、成人式や結婚式などの写真撮影に良く利用されています。また広い座敷ではジャズコンサートや伝統芸能の勝山左義長ばやしなども行われており、昼食の後に勝山左義長ばやしを体験できるプランもあります。建物の周囲も広く改修されて屋外空間も使用でき、特に春には玄関前の大きなしだれ桜が満開となり建物とのコントラストが素敵で、撮影にピッタリです。
活用事例
施設情報
| 施設名 | 旬菜食祭 花月楼(国登録文化財) | 
|---|---|
| 形態 | 木造2階建、飲食店、料理店、貸座敷 | 
| 広さ | 約658㎡ | 
| 貸出可能場所 | 1階、2階座敷、外周り | 
| できること | 写真撮影、飲食、飲酒、演奏会、集会、イベント、結婚式、写真撮影、コンサートなど | 
| 貸出可能日時 | 要相談 | 
| 貸切 | 可 | 
| 設備等 | トイレ男女別、多目的トイレ、エアコン、机、 座敷用椅子有 | 
| 利用料 | 利用方法により設定あり、要相談 | 
| 利用予約方法 | 電話、もしくはHP内の問合わせフォーム | 
| 利用料の支払い | 要相談 | 
| 注意事項 | ・1階部分は一般営業していますので、営業時間内は使用できない場合があります ・1階営業時間 11時〜14時ラストオーダー 定休日 毎週火曜日、水曜日(火曜日はご予約のお予約のお客様のみ) ・文化財のため、建物本体に傷をつけない様にご注意ください。 | 
| 利用申込先 | ・花月楼 勝山市本町2丁目6-21 TEL:0779-87-1355 ・勝山市観光まちづくり会社 勝山市元町1丁目18-19 TEL:0779-87-1245 TEL:0779-87-1355(花月楼) | 
| Webサイト | https://katsuyama-navi.jp/kagetsuro/ | 
平面図
アクセス
〒911-0806 福井県勝山市本町2丁目6-21
えちぜん鉄道勝山駅から徒歩9分勝山ICから車で7分
駐車場20台、大型バス駐車場有
 
 
 
 
 
 
 
 
 
 
 
 
